Выполнен проект по реконструкции маслоохладителей трансформаторов из-за неэффективности охлаждения.
Получен Приказ №276 об утверждении проектной документации.
Заказчик:
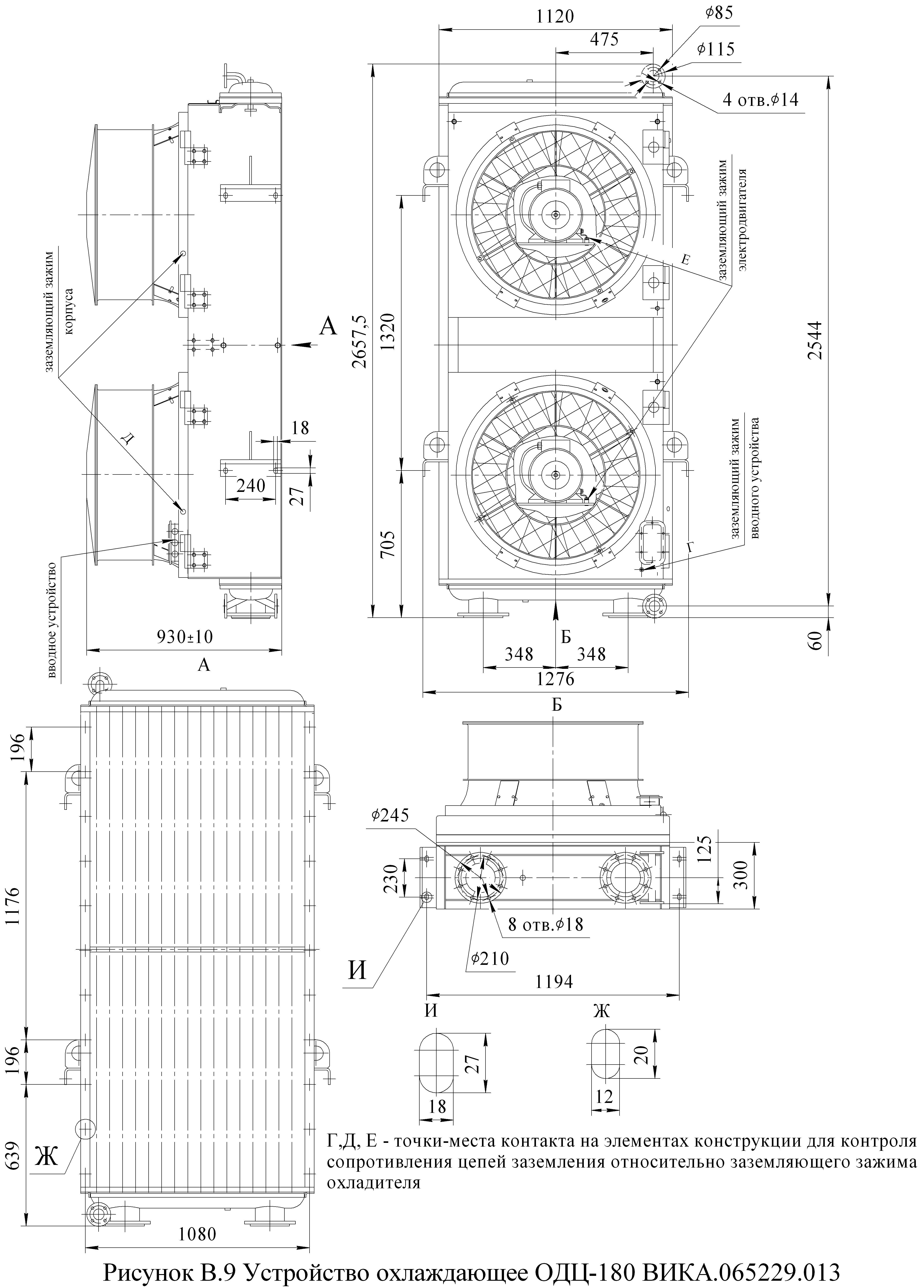
Данным проектом предусматривается замена маслоохладителей на четырех трансформаторах в связи с предписанием МТУ Ростехнадзора из-за неэффективности охлаждения:
1. На трансформаторах Т-91, Т-92, Т-97 подлежат замене маслоохладители.
2. На трансформаторе Т-94 два маслоохладителя остаются в существующем положении и не изменяются по заданию Заказчика. При производстве работ требуется демонтаж части существующего оборудовании с последующей его установкой.
Статус:
завершен
Год:


