Текущие проекты

Замена четырех Na-катионитных фильтров №8,9,11,12

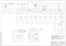
Выполнен проект по замене существующих электрических двигателей дренажных насосов.

Данным проектом предусматривается замена существующих  электрических двигателей дренажных насосов НДВ-1 и НДВ-2 на новый, мощностью 15 кВт 2900 об/мин электрический двигатель марки NB 65-160/173 A-F-R-DQQF. Электроснабжение электродвигателей дренажных насосов НДВ-1 и НДВ-2  осуществляется на напряжении 0,4 кВ от существующей панели  №2 щита №1 КРУ-0,4кВ ХВО и панели №9 щита №3 КРУ-0,4кВ ХВО.

Статус: 
завершен
Год: